Nos avis clients
Nos avis clients
0

Maison en pierres 2 chambres

Teillé (44440)
Réf : 59

TEILLE

BATISSE PIERRE PERMIS DE CONSTRUIRE ACCEPTE

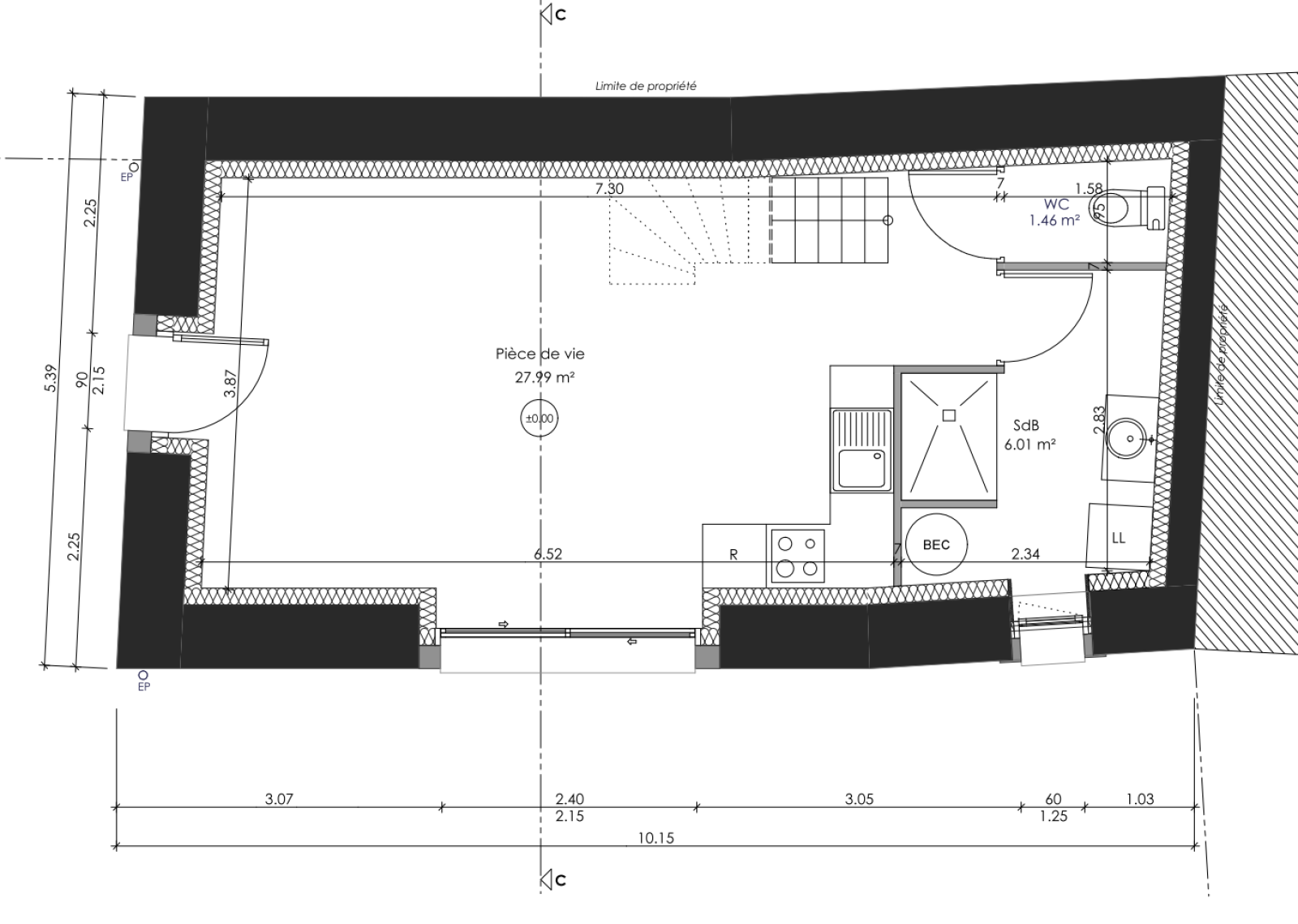
En village sur la commune de Teillé, à 3 minutes du centre bourg et à 20 minutes d'Ancenis, venez décourvir cette batisse en pierres mitoyenne d'un côté pouvant être aménagée en une habitation de 53m² habitables (75m² au sol sur 2 niveaux).

Le permis de construire a été validé, pas de démarches à prévoir.

La viabilisation est faite (eau, électricité, télécom). Un assaissement autonome est à prévoir.


Notre avis : une très belle opportunité pour un bricoleur souhaitant devenir propriétaire à moindre coût, sans démarche d'urbanisme et de raccordement à prévoir.

découvrir le bien
Prix du bien 38 900 €
Pièce(s) 3
Chambre(s) 2

Caractéristiques du bien

Caractéristiques Valeurs
Code postal 44440
Surface habitable (m²) 53 m²
surface terrain 160 m²
Nombre de chambre(s) 2
Nombre de pièces 3
Etage 1
Nb de salle d'eau 1
Balcon NON
Terrasse OUI
Cave NON
Nombre de parking 2
Exposition Sud-Ouest

Infos financières

Caractéristiques Valeurs
Prix de vente honoraires TTC inclus 38 900 €
Prix de vente honoraires TTC exclus 35 000 €
Honoraires TTC à la charge acquéreur 11.14 %

Bilans énergétiques

DPE GES
Ce bien vous intéresse ?
Fieldset par défaut
Fieldset par défaut
Validation

* Champs obligatoires

Contacter l'agence
Validation
Les informations recueillies sur ce formulaire sont enregistrées dans un fichier informatisé par La Boite Immo agissant comme Sous-traitant du traitement pour la gestion de la clientèle/prospects de l'Agence / du Réseau qui reste Responsable du Traitement de vos Données personnelles.
La base légale du traitement repose sur l’intérêt légitime de l'Agence / du Réseau.
Elles sont conservées jusqu'à demande de suppression et sont destinées à l'Agence / au Réseau.
Conformément à la loi « informatique et libertés », vous pouvez exercer votre droit d'accès aux données vous concernant et les faire rectifier en contactant l'Agence / le Réseau.
Si vous estimez, après avoir contacté l'Agence / le Réseau, que vos droits « Informatique et Libertés » ne sont pas respectés, vous pouvez adresser une réclamation à la CNIL.
Nous vous informons de l’existence de la liste d'opposition au démarchage téléphonique « Bloctel », sur laquelle vous pouvez vous inscrire ici : https://www.bloctel.gouv.fr 
Dans le cadre de la protection des Données personnelles, nous vous invitons à ne pas inscrire de Données sensibles dans le champ de saisie libre
Ce site est protégé par reCAPTCHA, les Politiques de Confidentialité et les Conditions d'Utilisation de Google s'appliquent.
Ces biens peuvent vous intéresser